Negozio in affitto

Folgaria, Via Maffei - Costa
€ 3.000 / mese
4 locali 4 locali
326 Mq 326 Mq
5 bagni 5 bagni

Negozio in affitto

Folgaria, Via Maffei - Costa

Descrizione annuncio

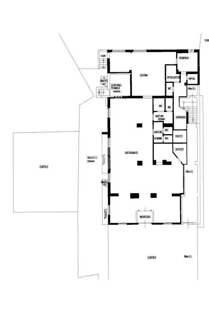
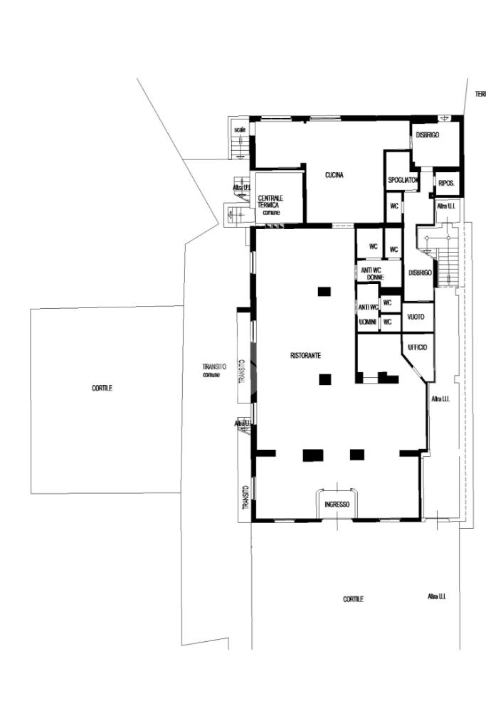
COSA SAPERE DELL'IMMOBILE - FOLGARIA ( LOCALITA' COSTA ) - LOCALE COMMERCIALE - 326 MQ

DESCRIZIONE E PARTICOLARITA'

In posizione strategica di forte visibilità, proponiamo in locazione un ampio locale commerciale situato a Folgaria, nella rinomata località Costa, inserito in un contesto di intenso passaggio veicolare che assicura ottima esposizione e facilità di accesso.

L’immobile si sviluppa su una superficie complessiva di 326 mq ed è attualmente predisposto come ristorante, pronto ad accogliere una nuova gestione. L’ingresso conduce alla spaziosa sala dedicata alla ristorazione, collegata alla zona cucina funzionale e ben organizzata. A servizio della clientela sono presenti cinque servizi igienici completi di antibagno per uomini e donne, mentre il personale dispone di uno spogliatoio dedicato. Completano la proprietà cinque pratici vani ad uso deposito, ideali per lo stoccaggio e la gestione dell’attività.

All’esterno troviamo un plateatico, perfetto per la stagione estiva e per ampliare la capienza nei periodi di maggiore affluenza, oltre a un comodo piazzale privato con dieci posti auto di proprietà, un valore aggiunto importante in zona turistica.

Il locale viene consegnato completo di arredo ed è attualmente libero, rappresentando una soluzione ideale per chi desidera avviare o trasferire la propria attività in una località a forte vocazione turistica, con spazi generosi e già pronti all’uso.

Per maggiori inofrmazioni o per fissare una visita non esitare a contattarci!

Mostra tutto

Nelle vicinanze

Trasporto pubblico Trasporto pubblico
Ski train
Ski train
330 m
Trasporto pubblico
330 m
Ricariche auto elettriche Ricariche auto elettriche
Folgaria SS350 | NEOGY
1,3 Km
Scuole Scuole
Scuola Secondaria di primo grado "Pia Rella"
1,4 Km
Scuola Primaria "Simone Lauton"
1,5 Km
Farmacia Farmacia
Farmacia
1,4 Km
Supermercati Supermercati
Targher
1,5 Km
Famiglia Cooperativa
1,5 Km
Margherita Conad
1,7 Km
Negozi Negozi
Casel
290 m
Panificio Barbetti
1,3 Km
SnowStar rents
1,5 Km
Bar Bar
Albergo Folgaria
1,3 Km
Albergo Restorante Bar
1,3 Km
Osteria Bar
1,3 Km
Chalet Passo Sommo
1,3 Km
L'Angolo Bar
1,5 Km
Ristoranti Ristoranti
L'Alpe
370 m
Hotel Rech-Hof Sayonara
390 m
Osteria del Carador
410 m
Residence Alaska
1,2 Km
alla Segheria
1,2 Km
Mostra tutto

Caratteristiche

Rif.:
61181965
Piano:
Terra di 4
Totale piani:
4
Posti auto:
10
Condizionamento:
Assente
Ascensore:
No
Mostra tutto
Prezzo Prezzo
€ 3.000 / mese
Spese annue Spese annue
€ 0

Classe Energetica

Questo immobile è esente da classe energetica
Anno di costruzione:
1967
Riscaldamento:
Autonomo
Tipo impianto:
A radiatori
Tipo alimentazione:
Aria

Ti interessa visionare l'immobile?

Fissa un appuntamento  Fissa un appuntamento

Richiedi informazioni

Clicca su Leggi per aprire l'informativa
* Questi campi sono obbligatori
Affiliato
Industriale Rovereto Srl
Via Dante, 61 38068 Rovereto (TN)

Il nostro staff


  • Leonardo Bushi
    Collaboratore

  • Nicholas Clementi
    Affiliato

  • Francesca Mutinelli
    Coordinatrice

  • Pascal Arrigo
    Affiliato
Via Dante, 61 38068 Rovereto (TN)
Zona: Rovereto
Mostra su mappa
Affiliato
Industriale Rovereto Srl
Via Dante, 61 38068 Rovereto (TN)

2026 Tecnocasa Franchising S.p.A. - P. IVA 08365160152 - Via Monte Bianco 60/A 20089 Rozzano (MI). Ogni agenzia ha un proprio titolare ed è autonoma. Privacy policy | Policy utilizzo | Cookie policy